В Бресте прошли торги за право проектирования и строительства многоквартирного жилого дома с объектами общественного назначения, пишет «Любимый Брест».
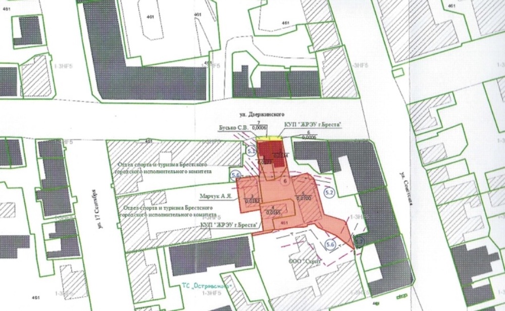
Участок на улице Дзержинского, 31 и 33 площадью 0,1283 га выставлялся по стартовой цене 4 864 рубля. Однако во время торгов она стремительно выросла и достигла внушительных 900 000 рублей.

Читайте также: В Бресте продается квартира-студия с дизайнерским ремонтом. Интерьер стильный, но понравится не всем
Кто боролся за землю и почему?
В аукционе участвовали пять крупных застройщиков, среди которых «Полесьежилстрой», «БудРай», «Демарш» и другие девелоперы. Высокий интерес к участку объясняется его расположением — это практически центр города, где жилье пользуется стабильно высоким спросом.

По словам экспертов, в Бресте формируется пласт покупателей, которые выбирают квартиры именно в центре и готовы платить за них почти «минские» цены. В последние годы в исторической части города уже появились жилые комплексы формата премиум-класса, и этот участок, вероятно, станет частью этого тренда.
Что сейчас на этом месте и что появится?
На данный момент на участке расположены полуразрушенные здания, находящиеся на балансе ЖРЭУ. По условиям аукциона, будущий застройщик должен выплатить компенсацию за их снос — 708 077 рублей.
На этом месте появится многоквартирный жилой дом с коммерческими объектами на первых этажах. Это могут быть офисы, магазины, кафе или другие объекты инфраструктуры.

Почему земля в Бресте дорожает?
Ситуация с этим участком подтверждает общий тренд: земля в Бресте стремительно растет в цене. По данным Национального кадастрового агентства, за последний год стоимость участков под многоквартирные дома с 2019 года выросла на 74,7% и теперь составляет 207,01 рубля за квадратный метр.
Ранее журналисты BGmedia писали, что Брест вошел в пятерку городов с самой дорогой землей в Беларуси, уступая лишь Минску, Фаниполю и Заславлю. Эксперты связывают рост цен с развитием инфраструктуры, спросом на жилье и изменением методики кадастровой оценки.
Этот аукцион — еще одно подтверждение того, что центральные районы города становятся все более привлекательными для инвесторов. А значит, и цены на жилье здесь, скорее всего, будут только расти.
Читайте также: Брест попал в топ-10 городов с самой дорогой землей в Беларуси. Узнали цены
Будь на связи и в безопасности: подключи BGlobal VPN
Наш канал в Telegram. Присоединяйтесь!
Есть о чем рассказать? Пишите в наш Telegram-бот. Это анонимно и быстро


Сообщить об опечатке
Текст, который будет отправлен нашим редакторам: